Property Page

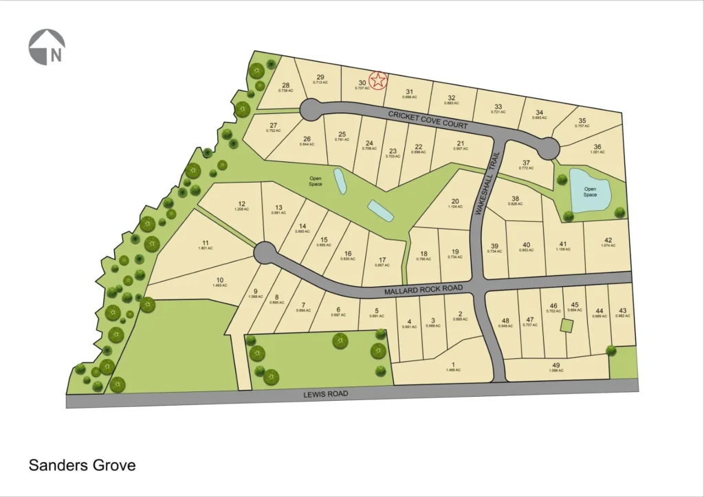
Lot 30

Builder - Colebrooke Custom Homes

Property Location

Available material for this property

Link to Plans below as provided by builder

Link to Specs below as provided by builder

Link to Rendering below as provided by builder

Link to Flyer below as provided by builder

Link to Property Video below as provided by builder

Link to Image Gallery below as provided by builder

Coming Soon